Thông tin dự án thiết kế spa Moon
- Tên dự án: Thiết kế spa Moon – Vinhomes Ocean Park
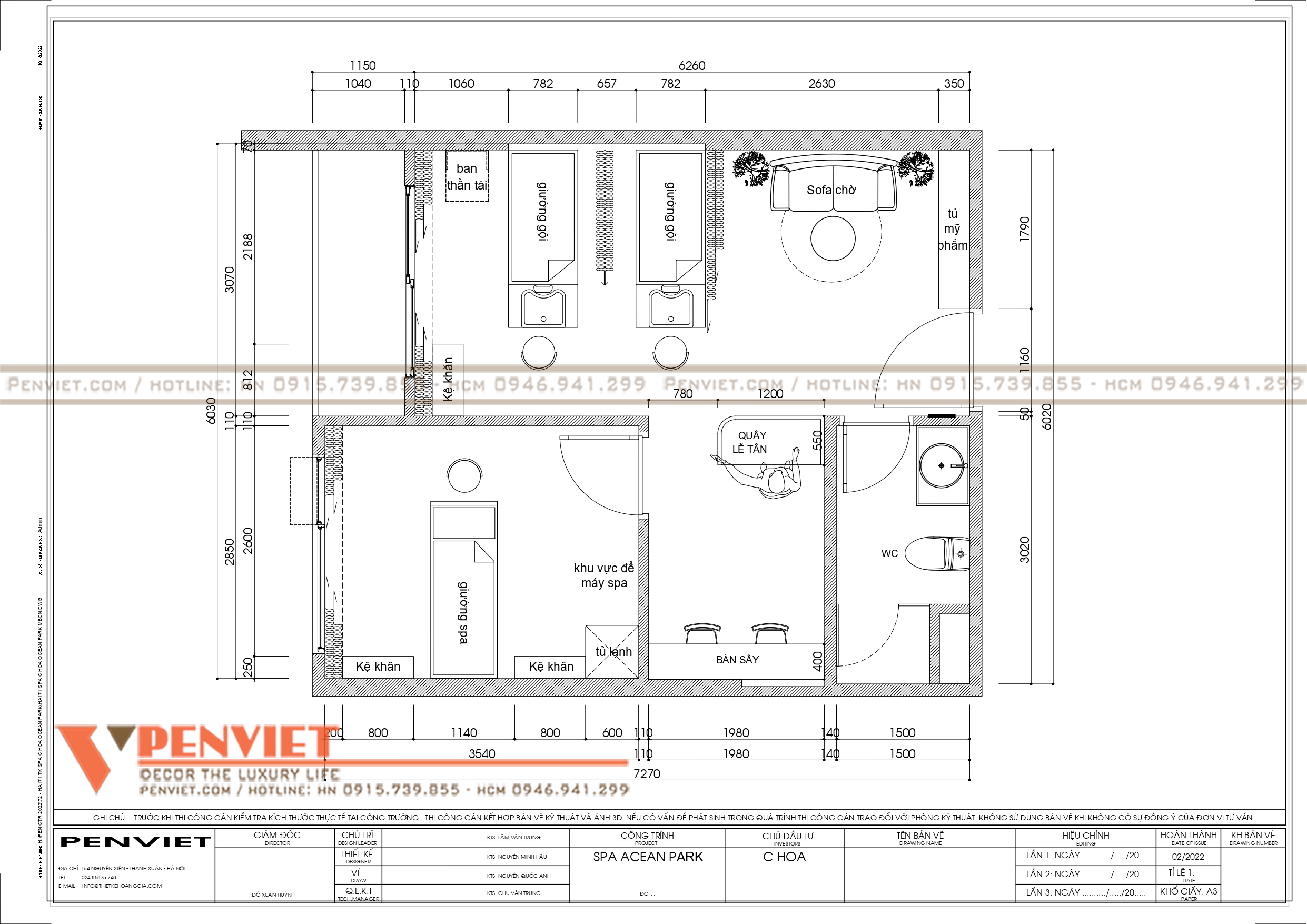
- Tên chủ đầu tư: Chị Hòa
- Địa chỉ: Vinhomes Ocean Park
- Diện tích: 50 m2
- Phong cách: Hiện đại
Chi tiết mẫu thiết kế spa Moon tại Vinhomes Ocean Park

Xem thêm:
Những mẫu thiết kế shop, spa, cửa hàng đẹp nhất hiện nay
